Maison 5 pièces 120m2
Prix
259 800 €
Ref SFN-0025880
Description du bien
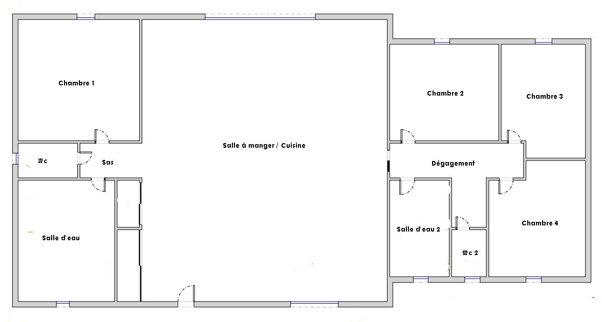
Votre conseillère Stéphanie Fortin Noovimo, vous propose cette Maison récente de plain-pied – 120 m² – 4 chambres – Terrain 594 m². Venez découvrir cette maison familiale de plain-pied construite en 2023, encore sous garantie décennale. Elle offre une belle pièce de vie lumineuse de 55 m² avec cuisine ouverte aménagée et équipée. La maison comprend une suite parentale avec placard et salle d’eau, ainsi que trois autres chambres avec une seconde salle d’eau et des WC séparés. Implantée sur un terrain clos de 594 m², elle dispose d’une terrasse bois exposée sud-est et d’un cabanon de 19 m². Maison économique grâce à sa pompe à chaleur avec climatisation réversible et radiateurs performants. Proche des écoles, commerces et commodités. Raccordée au tout-à-l’égout et à la fibre. Une maison récente, fonctionnelle et idéale pour une vie de famille. A visiter sans tarder!!!
Honoraires 3,92%TTC de 250 000€ (prix de vente honoraires exclus). Soit 259 800€ honoraires inclus. Honoraires à la charge de l'acquéreur. Ref: 25880. Votre agent indépendant Noovimo. Nos honoraires sont consultables sur www.noovimo.fr. Les informations sur les risques auxquels ce bien est exposé, sont disponibles sur le site Géorisques: http://www.georisques.gouv.fr - Annonce rédigée et publiée par un Agent Mandataire indépendant inscrit au RSAC sous le n°84344435
Descriptif du bien
5
Pièces
120
m²
4
Chambres
| Label | Value |
|---|---|
| Code postal | 44650 |
| Surface habitable (m²) | 120 m² |
| surface terrain | 594 m² |
| Surface loi Carrez (m²) | 120 m² |
| Nombre de chambre(s) | 4 |
| Nombre de pièces | 5 |
| Nombre de niveaux | 1 |
| Label | Value |
|---|---|
| Nb de salle d'eau | 2 |
| Cuisine | AMERICAINE |
| Type de cuisine | EQUIPEE |
| Mode de chauffage | Pompe à chaleur, Electrique |
| Type de chauffage | Air pulsé, Radiateur |
| Format de chauffage | Individuel, Individuel |
| Interphone | NON |
| Visiophone | NON |
| Terrasse | OUI |
| Exposition | OUEST |
| Année de construction | 2023 |
| Quartier | Legé centre |
| Label | Value |
|---|---|
| Copropriété | NON |
| Label | Value |
|---|---|
| Prix de vente honoraires TTC inclus | 259 800 € |
| Prix de vente honoraires TTC exclus | 250 000 € |
| Honoraires TTC à la charge acquéreur | 3,92 % |
| Charges | 80 € |
| Taxe foncière annuelle | 485 € |
| Label | Value |
|---|
Contacter l'agence
Les informations recueillies sur ce formulaire sont enregistrées dans un fichier informatisé par La Boite Immo agissant comme Sous-traitant du traitement pour la gestion de la clientèle/prospects de l'Agence / du Réseau qui reste Responsable du Traitement de vos Données personnelles.La base légale du traitement repose sur l'intérêt légitime de l'Agence / du Réseau.Elles sont conservées jusqu'à demande de suppression et sont destinées à l'Agence / au Réseau.Conformément à la loi « informatique et libertés », vous disposez des droits d'accès, de rectification, d'effacement, d'opposition, de limitation et de portabilité de vos données. Vous pouvez retirer votre consentement à tout moment en contactant directement l'Agence / Le Réseau.Consultez le site https://cnil.fr/fr pour plus d'informations sur vos droits.Si vous estimez, après avoir contacté l'Agence / le Réseau, que vos droits « Informatique et Libertés » ne sont pas respectés, vous pouvez adresser une réclamation à la CNIL.Nous vous informons de l'existence de la liste d'opposition au démarchage téléphonique « Bloctel », sur laquelle vous pouvez vous inscrire ici : https://www.bloctel.gouv.frDans le cadre de la protection des Données personnelles, nous vous invitons à ne pas inscrire de Données sensibles dans le champ de saisie libre.
